صفحه اصلی
برنامه نویسی
طراحی وب
علوم انسانی
علوم پایه
علوم پزشکی
عمومی و آزاد
فنی و مهندسی
کارآفرینی
کتاب و جزوه
گرافیک
نرم افزارهای آماده
صفحه اصلی
طراحی وب
علوم انسانی
علوم پایه
علوم پزشکی
عمومی و آزاد
فنی و مهندسی
کارآفرینی
کتاب و جزوه
گرافیک
نرم افزارهای آماده
فروشگاه بزرگ یک اسکریپت
آخرین فایل های منتشر شده
پاورپوینت با عنوان تحقیق، بررسی و مطالعه کوانتومی ترانزیستورهای مبتنی بر نانولوله های کربنی(CNT) در 18 اسلاید
Accounting for Management Control
پاورپوینت خوب با عنوان روش های لایه نشانی برای ساخت ادوات الکترونیکی در 16 اسلاید
Animal Cell Technology: Basic & Applied Aspects: Proceedings of the Sixth International Meeting of the Japanese Association for Animal Cell Technology
دانلود تحقیق 6 صفحه ای به دو زبان فارسی و انگلیسی با موضوع خودروی برقی
Hume’s Theory of Imagination
دانلود تحقیق با موضوع توربین بادی
Scenario Studies for the Rural Environment: Selected and edited Proceedings of the Symposium Scenario Studies for the Rural Environment, Wageningen, T
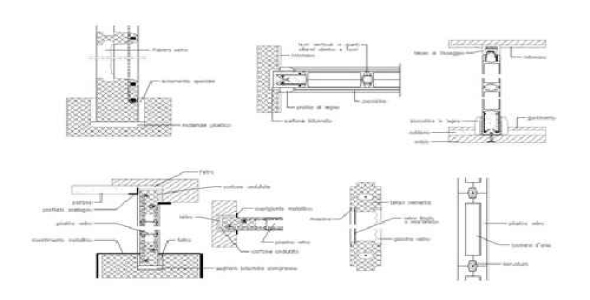
فایل اتوکد طراحی همراه با جزئیات دقیق و اجرایی دیوار شیشه ای
Hydrogen in Metals I: Basic Properties
20 مکانیسم شبیه سازی شده در نرم افزار سالیدورکز
Bank Mergers: Current Issues and Perspectives
«
398
399
400
401
402
403
404
405
406
»