صفحه اصلی
برنامه نویسی
طراحی وب
علوم انسانی
علوم پایه
علوم پزشکی
عمومی و آزاد
فنی و مهندسی
کارآفرینی
کتاب و جزوه
گرافیک
نرم افزارهای آماده
صفحه اصلی
طراحی وب
علوم انسانی
علوم پایه
علوم پزشکی
عمومی و آزاد
فنی و مهندسی
کارآفرینی
کتاب و جزوه
گرافیک
نرم افزارهای آماده
فروشگاه بزرگ یک اسکریپت
آخرین فایل های منتشر شده
Encounter with Mathematics
پروژه پاورپونت سیستم های گاز سوز CNG
Biological Regulation and Development: Molecular Organization and Cell Function
دانلود پاورپوینت مطالعات و بررسی رنگها در طراحی بیمارستانها و مراکز درمانی
Modelling and Prediction Honoring Seymour Geisser
آمار روزانه دما و بارش و رطوبت و باد و...ازتاریخ 1951-01-01 00:00 تا 2017-01-01 00:00 شهر تهران کد 40754
دانلود گزارش کارآموزی شرکت فنی مهندسی
Novel Pharmacological Interventions for Alcoholism
مجموعه تفریحی توریستی مسکونی تجاری اداری 3 بعدی اسکچاپی ...... B3 ..... شامل (تنها) فایل 3 بعدی اسکچاپی ..... کلیپ را مشاهده نمایید.
جزوه آموزش سیستم های اطلاعات مکانی (GIS)
Coulomb Interactions in Nuclear and Atomic Few-Body Collisions
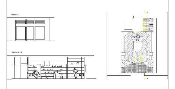
فایل اتوکد طراحی مغازه پوشاک همراه با مقطع مبلمان شده و نما
«
251
252
253
254
255
256
257
258
259
»